WARRINGTON TOWNSHIP

32-townhome HOA development OK'd for Easton Road in Warrington

The site calls for demolition of existing structures

(Credit: Warrington Township)

  • Government

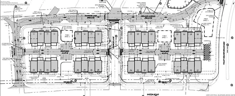
A new 32-townhome development to be governed by a homeowner’s association was approved for a 4-acre parcel on Easton Road by Warrington Township officials last month.

“Valley Ridge” will be constructed in groups of four units, with 8,500 square feet of open space, and will connect to Valley Square Boulevard, according to the Bucks County Herald.

The site on the 700 block of Easton Road calls for an as-yet-to-be-announced retail pad site and demolition of existing buildings.

Read more here.


FROM OUR PARTNERS


Saturday, February 14, 2026
STEWARTVILLE

MOST POPULAR

Events

February

S M T W T F S
25 26 27 28 29 30 31
1 2 3 4 5 6 7
8 9 10 11 12 13 14
15 16 17 18 19 20 21
22 23 24 25 26 27 28

To Submit an Event Sign in first

Today's Events

No calendar events have been scheduled for today.